广州市海珠区建筑工地发生塔吊坍塌事故,造成7人死亡、2人重伤。50多人被追责!
发布日期:2020-05-15 13:58:34 浏览量:10482017年7月22日18时07分,广州市海珠区一建筑工地发生塔吊坍塌事故,造成7人死亡、2人重伤。
自2020年1月至今,住建部连发处罚通报,再对该起事故的施工、监理单位及相关责任人进行追责:
建督罚字〔2020〕1号 监理公司:决定给予你单位责令停业整顿90日的行政处罚,自2020年2月6日开始执行。停业整顿期间,在全国范围内不得以工程监理综合资质承接新的房屋建筑工程监理项目。
建督罚字〔2020〕44号 施工总承包单位:决定给予你单位责令停业整顿90日的行政处罚,停业整顿自2020年4月10日始。停业整顿期间,你单位不得在全国范围内承接新的建筑工程施工总承包业务。
建督罚字〔2020〕47号 备案项目经理 黄某:决定吊销建筑工程专业一级建造师注册证书,且自吊销之日起5年内不予注册。
建督罚字〔2019〕26号 项目监理总监 李某建:决定吊销注册监理工程师注册执业证书,且自吊销之日起5年内不予注册。
经调查认定,事故的直接原因为:
部分顶升人员违规饮酒后作业,未佩戴安全带。在塔吊右顶升销轴未插到正常工作位置,并处于非正常受力状态下,顶升人员继续进行塔吊顶升作业,最终导致内塔身滑落,塔臂发生翻转解体,塔吊倾覆坍塌。

一、主要暴露出的问题:
(一)
塔吊顶升施工方案,未根据塔吊随机资料和作业场地的实际情况编制,缺乏针对性,无法用于指导作业人员进行顶升作业;组织未经安全技术交底、饮酒后的顶升作业人员冒险高处作业;安全风险防控意识不强,在发现顶升销轴难以插到位等隐患存在情况下,未排查故障原因,而是违规锤击销轴端部,强制插拔销轴,在上述隐患未解决前,继续冒险顶升作业。
(二)
建设方将B区项目主体工程违法发包,导致施工现场施工总负责主体责任缺失,安全生产管理混乱,安全生产责任不落实。
施工单位负责人、管理人员、施工人员、现场指挥人员均不熟悉此种型号塔吊的性能、说明书、顶升施工方案,违规审核审批方案。任命不具备相应从业资格的人员担任项目负责人,放任备案项目经理长期不在岗;未督促落实安全检查、教育培训工作。
从项目建设单位、施工总承包单位,到现场施工单位、监理单位、塔吊安装单位,安全生产工作力度层层衰减、执行力层层打折。
建设单位部署安全生产动作迟缓、工作措施不具体;总承包单位责任不明确,以包代管、以租代管,安全生产工作流于形式。
施工现场各单位安全检查不认真,安全生产专项检查缺少具体工作内容和针对性措施,对发现的隐患没有形成有效闭环管理。
(三)
监理公司未认真执行监理细则方案,现场监理人员无证上岗,且自身安全技术知识与塔吊顶升工作需要不匹配,对施工单位提交的专项施工方案、安全技术措施心中无底,隐患排查治理、风险辨识管控不落实,对施工现场存在的安全事故隐患未能及时发现和消除。
执行法律法规意识淡薄,对自己应负的安全责任认识不足,责任心不强;现场监理人员到位情况较差,事发不在现场旁站。事发当日中午,塔吊顶升过程临时新增加未经安全技术交底的顶升安拆作业人员登塔作业,现场监理对此不闻不问。
(四)
住房城乡建设部门对安全生产工作重视不足,对违法分包、项目经理挂靠等问题视而不见,对塔吊重点环节安全监管不够细致,对上级批转的投诉举报不及时认真查处,未能督促事故单位消除安全隐患;全面落实从严治党主体责任不力,致使海珠区质监站发生多起收受礼金影响公正执行公务的违纪问题。
二、调查报告中涉及建筑企业和个人的严厉处罚有:
(一)
其中顶升施工企业2人,施工单位2人,监理单位1人,质监站2人。
1、北京正和公司2人(顶升施工企业)
(1)张某龙,事故塔吊顶升项目负责人。因涉嫌重大责任事故罪,被海珠区人民检察院批准逮捕。
(2)周某刚,施工现场安全员。因涉嫌重大责任事故罪,被海珠区人民检察院批准逮捕。
2、施工单位2人
(1)詹某淦,该项目的项目负责人。2017年8月29日,因涉嫌重大责任事故罪,被海珠区人民检察院批准逮捕。
(2)孙某雷,分管安全生产项目副经理。2017年8月29日,因涉嫌重大责任事故罪,被海珠区人民检察院批准逮捕。且在事故调查过程中涉嫌指使他人作伪证对抗组织调查。
3、监理单位1人
(1)王某前,监理员。2017年8月29日,因涉嫌重大责任事故罪,被海珠区人民检察院批准逮捕。
4、质监站2人
(1)杨某龙,区质量安全监督站副站长,分管质量监督工作,对事故的发生负监管方面的直接责任。此外,其因另案涉嫌受贿罪被海珠区检察院立案侦查。
(2)甄某华,安全监督科科长,负责B区项目的质量和安全监管工作。存在履职不力的行为,还违反廉洁纪律,收受影响公正执行公务的礼金,对事故的发生负监管方面的直接责任。此外,其因另案涉嫌受贿罪被海珠区检察院立案侦查。
(二)其他单位及人员
事故调查组建议:
对9名企业人员和17名政府监管人员给予党纪政纪、诫勉谈话、书面检查等处分;
对15名企业人员,建议由企业根据内部管理规定处理。
对3家事故企业和7名企业人员违法违规行为,分别给予行政处罚。
责成5家事故相关企业,分别做出深刻检查等其他处理。
附:调查报告全文

广州市海珠区中J集团南方总部基地B区
项目“7·22”塔吊坍塌较大事故调查报告
2017年7月22日18时07分,广州市海珠区中J集团南方总部基地B区项目发生建筑工地塔吊坍塌较大事故,造成7人死亡、2人重伤,直接经济损失847.73万元。

一、基本情况
(一)项目概况。
中J集团南方总部基地B区项目(以下简称B区项目)是广州市新城市中轴线上地标建筑物“广州之窗”的一部分。广州之窗由A、B、C三区项目组成,完工后三栋建筑物由东往西排列成“001”的组合,A区是001组合的1,现是中J集团南方总部大厦,已投入使用,B区项目是001组合中间的0。
B区项目属于民用建筑建设工程,为1栋连体的40层办公楼,主要由东、西塔及上、下连体钢结构组成,建筑总面积是192788平方米,其中主体工程合同价格是44663.5万元。事故发生时,该项目已完成总量约30%。
(二)项目立项及批准情况。
2011年5月25日,取得了广州市国土资源和房屋管理局核发的《建设用地批准书》(穗国土建用字[2011]82号)。
2012年4月16日,取得了广州市住房和城乡建设委员会复函,明确该工程符合“可不进行招标”的规定。
2014年3月14日,取得了广州市环境保护局核发的《关于中J集团南方总部基地B区建设项目环境影响报告书的批复》(穗环管影[2014]5号)。
2014年4月28日,取得了广州市规划局核发的《关于同意中J集团总部基地修建性详细规划调整方案的复函》(穗规批[2014]105号)。
2014年7月14日,取得了广州市城乡建设委员会核发的《关于中J集团南方总部基地B区超限高层建筑工程抗震设防专项审查的批复》(穗建技复[2014]56号)。
2014年7月15日,取得了广州市民防办公室核发的《防空地下室建设意见书》(穗民防审[2014]34号)。
2014年9月9日,取得了广州市疾病预防控制中心核发的《关于中J集团南方总部基地B区建筑设计卫生学意见的复函》(穗疾控工评函[2014]217号)。
2014年12月25日,取得广州市海珠区发展和改革局核发的《广东省企业基本建设投资项目备案证》(备案项目编号:140105729010944)。
2015年4月28日,取得广州市公安消防局核发的《建设工程消防设计审核意见书》(穗公消审字[2015]第0649号)。
2015年12月3日,取得了广州市规划局核发的《建设工程规划许可证》(穗规建证[2015]1981号)。
2016年3月9日,取得了广州市海珠区住房和建设水务局核发的《建筑工程施工许可证》(编号:440105201603090201)。
(三)相关参建单位及工程组织实施情况。
经调查核实,该项目工程的建设单位为中J第四航务工程局有限公司,施工单位为中J第四航务工程局有限公司(具体由中J第四航务工程局有限公司总承包分公司实施),主体工程施工单位为:中J三局集团有限公司(具体由中J三局集团有限公司佛山分公司实施),监理单位为广州珠江工程建设监理有限公司,勘察设计单位为广东省建筑设计研究院。工程质量和安全监督机构为海珠区建设工程质量安全监督站。
1.工程建设方。
中J第四航务工程局有限公司(以下简称中J四航局)是B区项目建设单位,持有国家住房和城乡建设部颁发的港口与航道工程施工总承包特级资质,可承接3000万以上的房屋建筑工程。B区项目是中J四航局的自建项目,根据《招标投标法实施条例》及《工程建设项目施工招标投标办法》的相关规定,可以不进行招标,自行建设。
中J四航局成立了该项目管理领导小组,李惠明总经理任组长,黄焕谦、梁赟副总经理任副组长。因该项目是自建项目,其建设单位职责分别由中J四航局建管处、采购中心、财务处承担。
2.工程监理方。
广州珠江工程建设监理有限公司(以下简称珠江监理公司)是B区项目的监理单位。2014年1月10日,中J四航局与珠江监理公司签订了《建设工程委托监理合同》,约定由珠江监理公司对B区项目提供监理服务,合同费用为1060万元。珠江监理公司将该监理项目交由其下属的第二工程项目管理公司负责实施。
3.工程总承包方。
中J四航局是B区项目总承包施工单位。2015年3月2日,中J四航局与其下属单位中J第四航务工程局有限公司总承包分公司(以下简称“中J四航局总承包分公司”)签订了《工程总承包合同框架协议》,将B区项目的桩基础工程、主体工程及配套工程、装饰工程、电梯工程、给排水工程、消防工程、电气工程、空调通风工程、智能化系统、泛光照明、室外工程、工程采购管理等事项交由中J四航局总承包分公司负责,并由中J四航局总承包分公司派出相关人员成立B区项目总承包施工项目部实施项目管理。
4.工程主体施工方。
中J三局集团有限公司(以下简称中J三局)是该项目主体工程施工单位。2016年9月12日,中J四航局与中J三局签订了《中J集团南方总部基地B区土建工程施工合同》,将B区项目的主体工程分包给中J三局承建(该项目其他工程分包给其他单位)。中J三局承建后将该项目主体工程交由中J三局集团有限公司佛山分公司(以下简称中J三局佛山分公司)负责实际施工管理,并由中J三局佛山分公司派出相关人员组成项目部实施项目管理。
(四)塔吊情况。
1.塔吊基本信息。
据《08D-产品合格证明》显示,事故塔式起重机(以下简称事故塔吊)基本信息如下:
表1-1 事故塔吊基本信息表
事故塔吊的《特种设备制造许可证》由国家质量监督检验检疫总局于2005年6月13日初次颁发,变更日期为2013年4月26日,特种设备制造许可证号为TS2410023-2005B;产品合格证由马尼托瓦克起重设备(中国)有限公司于2014年5月27日签发,产品序列号为14003S。于2014年通过了国家建筑城建机械质量监督检验中心的特种设备型式试验,型式试验报告编号为GJ-11457-2014。
事故塔吊于2017年6月8日由广州市海珠区建设工程质量安全监督站签发了建设工程塔吊使用登记牌,编号为粤AD-00-1607-0628-1。
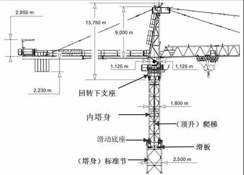
为便于分析,本报告对事故塔吊主要结构描述的术语约定见图1-1、1-2。
图1-1 塔吊结构示意图
图1-2 塔身结构示意图
注:本报告规定,观察者面向西,左手方向为左侧,右手方向为右侧。
事故塔吊涉及的工程项目与单位情况如下表:
表1-2 事故塔吊涉及工程项目、单位情况

2.塔吊产权、出租及安装顶升单位。
北京正和工程装备服务股份公司(以下简称北京正和公司)是事故塔吊产权、出租和安装、顶升单位,也是事故6名死者(安拆工和塔吊司机)、2名伤者劳动合同关系所属单位。北京正和工程装备服务股份公司广州分公司(以下简称北京正和公司广州分公司)是事故塔吊安装、顶升实际实施单位。
据《北京市起重机械登记编号》显示,事故塔吊的登记编号:京MY-T41683,登记日期:2016-6-8,产权单位:北京正和公司,登记部门:北京市密云区住房和城乡建设委员会。
3.塔吊技术服务单位。
厦门威格斯机械设备有限公司(以下简称厦门威格斯公司)是事故塔吊转让前实际控制单位及安装、顶升技术服务单位。
4.塔吊制造单位。
马尼托瓦克起重设备(中国)有限公司(以下简称马尼托瓦克公司)是事故塔吊制造单位,为外商投资企业(美资)。事故塔吊所属品牌系列是马尼托瓦克公司于2000年收购法国塔吊制造商波坦公司所得。
5.塔吊安装和使用登记情况。
2016年6月27日,北京正和公司向广州市海珠区建设工程质量安全监督站(以下简称海珠区质安站)办理了安装告知。2016年6月28日,该站批准同意安装。
2016年6月30日,北京正和公司广州分公司到B区项目安装事故塔吊,厦门威格斯公司安排该公司技术人员提供现场指导。
该塔吊安装完成后,广东省建筑科学院于2016年7月7日对该塔吊进行初次检验,检验评定结论为合格。2017年5月8日进行年度复验,检验评定结论为合格。海珠区质安站于2016年7月19日对该塔吊发出了第一次使用登记牌,有效日期为:2016年7月7日至2017年7月6日;于2017年6月8日发出了第二次使用登记牌,有效日期为:2017年6月8日至2018年5月7日。
6.塔吊合同关系情况。
据查,2014年5月15日,厦门威格斯公司与马尼托瓦克公司签订了销售合同,购买了该设备,约定了价格为365万元。当时厦门威格斯公司因无起重设备安拆一体化企业一级资质,故将该设备登记于厦门中环建建设集团公司(以下简称厦门中环建公司)名下,并于2014年7月17日在厦门东南国际航运中心总部大厦建设项目进行首次安装使用,2016年1月完工拆卸后放置于公司仓库。2016年6月(合同上没注明签订日期),厦门威格斯公司总经理陈伟峰擅自以厦门中环建公司名义将该设备出售给北京正和公司,价格为100万元。
2016年6月4日,中J四航局与北京正和公司签订了《中J集团南方总部B区塔式起重机服务合同》。2016年12月1日,为了便于完成主合同(《中J集团南方总部B区塔式起重机服务合同》)工程款的支付,承租方中J四航局总承包分公司与出租方北京正和公司签订了《中J集团南方总部基地B区项目塔吊租赁合同》,实际上,事故塔吊于2016年6月30日已经在中J集团B区项目安装,并于2016年7月24日进行第一次顶升作业。2016年12月1日,中J四航局总承包分公司、中J三局和北京正和公司签订了《中J集团南方总部基地B区土建工程起重机租赁三方协议》,将《中J集团南方总部基地B区项目塔吊租赁合同》约定的中J四航局总承包分公司义务和责任均转由中J三局承担;向北京正和公司支付的租赁费,经中J三局确认后,由中J四航局总承包分公司支付。
(五)顶升过程概述。
图1-3 内塔身顶升过程示意图
顶升过程包括以下步骤:
(1)收回活塞杆(图1-3,图A)。
(2)收回活塞杆后,穿入顶升销轴(2),微伸活塞杆,将换步销轴(1)从顶升爬梯拔出(图1-3,图B)。
(3)启动油泵伸出活塞杆,提升内塔身(图1-3,图C)。

图1-4 内塔身连接示意图
(4)每次在活塞杆完全伸出后,将换步销轴(1)插入爬梯踏步,活塞杆稍微收回一点后从顶升摇摆梁中拔出顶升销轴(2)(图1-3,图D)。
(5)重复以上操作,直至将连接滑板踏步挪至标准节鱼尾板的下方。将滑板从滑动底座拉出,推入工作位。
(6)继续顶升,用安装销(3)的销轴将滑板踏步(1)和上鱼尾板(2)销连。然后装上开口销(4)(图1-4,图A)。内塔身就完全伸出,并牢牢地固定在标准节上了。
由上述顶升过程可知,顶升过程中上塔身的所有载荷由左右两个顶升销轴承载。销轴通过顶升爬梯与滑动底座的兜底结构将荷载传递给下部塔身结构。此时,左右顶升爬梯的受力平衡十分重要。
二、事故经过及应急救援处置情况
(一)事故经过。
发生事故塔吊于2016年6月30日在该工地首次安装使用,在2017年7月19日前共进行了两次顶升作业,共安装顶升11个标准节。
第三次顶升作业时间为2017年7月20日至22日,7月20日完成了第一道附着装置的安装,21日完成了3个标准节(第12-14个标准节)的安装;7月22日完成了3个标准节(第15-17个标准节)的安装,塔身高度104米,事故发生在第4个标准节(第18个标准节)与顶升套架连接的状态下内塔身顶升过程中,塔吊处于加完标准节已顶起内塔身第2个步距的状态,由顶升环节正转换至换步环节,左换步销轴已处于工作位置,右换步销轴处于非工作位置,此时塔身高度约110m。
1.事发前顶升情况。
据现场监控录像记录,事故发生前顶升作业的主要过程如下:
1)22日上午05:59,塔吊司机到达塔吊司机室,开始吊运建筑材料。
2)07:42,8名顶升作业人员抵达现场。6名登塔准备作业,2名在地面准备安全警戒及挂钩工作。
3)10:11,地面工作人员卸下吊钩,装上顶升专用吊具。
4)11:11,开始吊装第15个(22日第一个标准节)标准节的1/2组件。
5)12:53,2名增援的顶升作业人员抵达现场,登塔参与顶升作业。
6)18:03-18:07,当第18个标准节完成加节,内塔身开始顶升4分钟左右时发生了本起事故。
2.塔吊坍塌过程。
通过监控拍摄到的坠落视频显示,塔吊坍塌从18时7分8秒开始,有效可见的坠落过程共10秒:
1)7分8秒,圆盘钢筋和吊钩最先落地,起重臂随后斜插到塔身处;
2)7分9秒,起重臂臂端倾斜插入地面,随后各个臂节接连落地、倾倒;
3)7分11秒,起重臂变幅小车落地时,圆盘钢筋再次向西拉动;
4)7分12秒,司机室落地,落到塔身东侧不远处,随后上塔身弯曲下坠后压碎司机室;
5)7分13秒,平衡臂落地,平衡臂坠落在塔身东侧较远处;
6)7分13 -15秒,顶升机构的滑板、销轴、爬升走台等散落在塔身附近的地面上,期间有若干作业人员落地;
7)7分16秒,塔帽斜插入地面;
8)7分17秒,顶升套架沿着内塔身向回转支座方向滑动。
9)7分16-18秒,内塔身、顶升套架以塔帽为圆心向东翻转,头朝西坠落在塔帽的东侧,滑动底座位于最东侧。
图2-1塔吊倾覆过程中上部宏观结构
图2-2塔吊倾覆过程中结构宏观图
(二)事故造成人员伤亡和直接经济损失情况。
事故造成7人死亡(其中1名顶升技术指导、1名塔吊司机、5名安拆工),2人受伤,事故塔吊受损。
依据《企业职工伤亡事故经济损失统计标准》(GB67211-1986)等标准和规定统计,核定事故造成直接经济损失为847.73万元。
(三)事故信息接报及响应情况。
18时09分,市公安局110指挥中心接到梦都劳务公司在B区项目现场施工人员的报警,称中J四航局在建工地发生塔吊倒塌。110指挥中心立即将接警信息通知海珠区公安分局、市公安局消防支队和120急救中心等单位和部门。
18时25分至19时22分,市政府值班室、市安全监管局分别向相关部门和领导报告事故发生情况;海珠区公安分局、120急救车辆、119消防中队赶到事故现场实施抢救工作。
19时05分左右,海珠区分管安全生产的区领导赶到事故现场,启动海珠区建筑工程安全事故应急预案,成立了事故救援现场指挥部,指挥救援工作。
19时45分左右,海珠区委主要负责同志到达事故现场,成立由区委主要领导任组长、区相关领导组成的事故善后处置领导小组。随后,市政府主要负责同志到达事故现场部署应急救援工作,市政府秘书长在事故现场组织市住房城乡建设、卫计、安全监管、应急等部门和海珠区政府落实应急处置和善后等工作。
(四)事故现场应急救援处置情况。
在事故现场指挥部的统一领导和指挥下,现场救援处置主要开展了以下工作:
1.现场救援方面。18时22分,海珠区沥滘消防中队到达事故现场,发现受伤工人,消防官兵利用救援工具将受伤人员救出并移交120。
2.医疗保障方面。120急救中心在接到急救电话后,第一时间调度救护车前往事故现场,并将伤者送往广州市紫荆医院,随后转送至广东省第二人民医院ICU监护治疗。自18时14分至18时50分,共派出7辆救护车、35名工作人员到达事故现场进行抢救。
(五)医疗救治和善后工作情况。
事故发生后,市领导温国辉、陈志英、马文田及市住房城乡建设委、市安全监管局、市卫生计生委等部门主要负责同志第一时间赶赴现场指挥救援处置工作,海珠区政府、公安、消防、卫计等部门和企业迅速开展对伤员的抢救和对死者遗体的处理工作,同时马上组织力量对施工现场进行保护,防止次生事故的发生。
海珠区成立了以区委主要领导任组长的区一级事故善后处置工作领导小组。按照每名死伤者家属一个工作班子的服务对接工作机制,做好遇难者家属的情绪疏导、心理安抚、赔偿协商、生活保障等工作。目前,伤者情况稳定,遇难者赔付已经完成。
三、事故原因
(一)直接原因。
经调查认定,本起事故的直接原因为:部分顶升人员违规饮酒后作业,未佩戴安全带;
在塔吊右顶升销轴未插到正常工作位置,并处于非正常受力状态下,顶升人员继续进行塔吊顶升作业,顶升过程中顶升摆梁内外腹板销轴孔发生严重的屈曲变形,右顶升爬梯首先从右顶升销轴端部滑落;
右顶升销轴和右换步销轴同时失去对内塔身荷载的支承作用,塔身荷载连同冲击荷载全部由左爬梯与左顶升销轴和左换步销抽承担,最终导致内塔身滑落,塔臂发生翻转解体,塔吊倾覆坍塌。
具体分析如下:
1.销轴孔同轴度发生变化。
塔吊右顶升销轴对应的摆梁外腹板销轴孔与顶升摆梁内腹板销轴孔发生了非同步塑性变形,导致摆梁内外腹板销轴孔之间的同轴度发生显著偏差,右顶升销轴难以正常插入与拔出,这属于事故发生前重要的安全隐患。
塔吊安拆人员在销轴孔发生变形、销轴插拔困难的情况下,未意识到这一隐患的严重后果,选择用锤击的方式解决销轴插拔困难的问题,继续顶升作业(见图3-1至3-4)。据痕迹检测,塔吊在多次顶升过程中,存在锤击销轴端面,致右顶升摆梁上内外腹板销轴孔同轴度偏差变大,导致销轴不易插拔。
图3-1 右顶升销轴内侧销轴孔变形形貌

图3-2左图局部的放大图
图3-3右顶升销轴外支承板孔边弯曲大变形
图3-4右顶升销轴孔边塑性变形
2.爬梯踏步座变形。
图3-5 右顶升爬梯第四孔形貌
图3-6 左图局部的放大图
塔吊在多次顶升后,爬梯踏步板孔表面也受销轴挤压发生塑性变形,造成爬梯踏面厚度增大,相邻踏步步距发生变化,左右爬梯同孔位踏步板孔的同轴度发生变化。致使左右爬梯踏面在换步时不在同一水平线上,当一边换步销轴插入后,另外一边换步销轴插入就存在一定的难度(见图3-5至3-6)。
3.销轴插拔操作辅助确认装置结构不完整。
图3-7 左下销操作杆上的滑杆插孔
图3-8 右下销操作杆上的滑杆插孔
图3-9 换步销操作滑杆安装支座
图3-10右侧顶升销轴辅助连杆装置
图3-11左顶升销轴操作杆的滑杆插孔
图3-12左侧换步销轴操作杆的滑杆插孔
据塔吊制造单位提供的图纸显示,操作导向滑杆及弹簧销是销轴正常插入与拔出位置的辅助确认装置。顶升系统应有4套销轴插拔操作手柄导向及弹簧销,但现场只安装有1套销轴插拔操作手柄导向系统,并代之以铁丝或葫芦链条临时绑扎滑杆插孔。另依据事故塔吊供货包装清单显示,新塔吊初次发货时仅提供2套销轴插拔操作手柄导向滑杆与弹簧销(见图3-7至3-12)。
4.顶升作业工人违章冒险作业。
根据《广东省广州市公安司法鉴定中心检验报告》(穗公(司)鉴(理化)字〔2017〕01748号)显示,经对死者血液中乙醇定性定量检验,龚国平、陈政琼、褚欧平、张亮、卢友利的血液中均有乙醇成分,含量分别是:龚国平64.5毫克/100毫升、陈政琼34.9毫克/100毫升、褚欧平(新增援顶升作业)5.1毫克/100毫升、张亮(新增援顶升作业)149.7毫克/100毫升、卢友利8.9毫克/100毫升。上述行为违反了《塔式起重机操作使用规程》(JG/T100—1999) 第2条的规定。
根据现场监控录像记录显示,事故部分伤亡人员坠落着地前已与塔吊分离,表明事故发生时有的顶升作业人员未佩戴安全带。上述行为违反了《塔式起重机操作使用规程》(JG/T100—1999) 第3.2.7条的规定。
5.人为破坏等因素排除情况。
经事故调查组现场勘查、计算分析,排除了人为破坏、气象、地基沉降、塔身基础、结构及其连接失效、非原制造厂主体构件、外部冲击荷载、顶升油缸失效等因素引起事故发生的可能。
(二)事故间接原因。
1.事故塔吊安装顶升单位(北京正和公司)安全生产管理不力,未能及时消除生产安全事故隐患。
北京正和公司安全技术交底落实不力;编制的塔吊顶升专项施工方案存在严重缺陷;安全生产检查巡查和安全生产培训教育不到位;未及时消除事故隐患;塔吊安全使用提示警示不足等。
2.事故塔吊承租使用单位(中J四航局总承包分公司)没有认真履行安全生产主体责任,对事故塔吊安装顶升单位监督管理不力。
中J四航局总承包分公司具体实施将该项目主体工程施工违法分包给中J三局;未健全和落实安全生产责任制和项目安全生产规章制度,放任备案项目经理长期不在岗,并任命不具备相应从业资格的人员担任项目负责人;未认真审核塔吊顶升专项施工方案等。
3.工程监理方珠江监理公司履行监理责任不严格,未按照法律法规实施监理。
珠江监理公司旁站监理员无监理员岗位证书上岗旁站,且事发时不在顶升作业现场旁站;未认真审核塔吊顶升专项施工方案;未认真监督安全施工技术交底等。
4.中J四航局、中J三局、厦门威格斯公司、马尼托瓦克公司等涉事企业不认真落实安全生产责任制,事故预防管控措施缺失。
中J四航局未履行建设单位监管职责,对下属单位安全生产工作监管不力;中J三局未严格执行安全生产法律法规,承接了事故项目主体工程的施工;厦门威格斯公司未能有效指导塔吊顶升作业;马尼托瓦克公司未就同型号事故塔吊曾发生的事故原因以及所暴露出的操作问题发函提醒警示相关客户重点关注此类操作问题等。
5.行业主管部门及属地政府安全生产监管不力。
行业主管部门及属地政府对违法分包、项目经理挂靠等问题监管不力;对塔吊重点环节安全监管不够细致;对上级批转的投诉举报不及时认真查处;未能督促事故单位消除安全隐患等。
(三)事故性质。
调查认定,广州市海珠区中J集团南方总部基地B区项目“7·22”塔吊坍塌事故是一起较大生产安全责任事故。
四、塔吊顶升作业管理情况
经调查,塔吊顶升作业具体事实如下:
(一)塔吊顶升方案方面。
北京正和公司编制事故塔吊顶升施工方案未根据塔吊随机资料和作业场地的实际情况,缺乏针对性,无法用于指导作业人员进行顶升作业,不符合《建筑施工塔式起重机安装、使用、拆卸安全技术规程》(JGJ196-2010)第2.0.10条[12]的规定。
事故塔吊顶升施工方案由北京正和公司广州分公司王大印编制,并经北京正和公司张献龙、陈云龙以及中J四航局总承包分公司赵晓卫、罗刚等人依次审核、审批,最终审批时间为2017年6月10日。
(二)教育培训方面。
塔吊安装顶升单位未对从事顶升作业的人员针对该型号塔吊顶升工作原理、重大操作风险、对策措施等方面开展操作技能与安全培训;顶升作业人员顶升前没有认真学习该塔吊的随机技术资料。
据调查,顶升作业班长陈波表示曾阅过塔吊《安装与拆卸手册》,但未明白塔吊的顶升原理与操作过程以及安全注意事项、应急处置方法。
2017年7月20日,顶升作业人员在工地项目部接受了安全技术交底后进行塔吊附着作业。
2017年7月21日,北京正和公司现场安全员对顶升作业人员在上塔作业前进行了安全技术交底,但交底内容与事故塔吊的机械性能要求不相符。
2017年7月22日,未对两名新增安拆工进行安全技术交底工作。
(三)塔吊安全隐患处置方面。
当发现右顶升销轴难以插到位,塔吊顶升处于异常工作状态时,厦门威格斯公司技术指导龚国平未能要求立即停止顶升作业,未及时联系塔吊制造单位予以排除,对继续顶升造成的危险后果认识不足、指导不力、处置不当。
(四)顶升作业组织方面。
综合塔吊用户操作经验以及相关人员询问情况,顶升加节作业时,塔吊上通常需要9人(含司机):在液压操作平台(中平台)上有3人,主要负责指挥、液压油泵的操作、左右两侧顶升销轴与换步销轴的插拔;1人在内塔身平台上观察销轴插拔情况;4人在顶升作业平台(大平台或外平台)四角,负责安装标准节等。
参与本次顶升作业的大部分人员未从事过同型号塔吊的顶升作业。同时,厦门威格斯公司派出的技术人员是首次指导该班组的顶升作业,对各参与顶升作业人员的协同作业水平不了解。
(五)顶升作业任务安排方面。
该塔吊日常使用的司机为陈政琼、张才强,机长为余志伟,三人的工资均为厦门威格斯公司垫付。
根据施工进度需要,2016年7月24日,北京正和公司广州分公司安排人员进场进行该塔吊第一次顶升作业,并由厦门威格斯公司安排邓如军提供现场技术指导。该次顶升作业共完成顶升5节标准节。
2017年4月30日,北京正和公司广州分公司安排人员进场进行该塔吊第二次顶升作业,本次顶升作业厦门威格斯公司未安排人员进行现场技术指导,技术指导工作由班长郭小宾负责。该次顶升作业共完成顶升2节标准节。
2017年7月20日,北京正和公司广州分公司安排人员进场进行塔吊附着作业,并于21日、22日进行第三次顶升作业。其中,21日的顶升作业人员为5名安拆工(班长陈波、王恩光、刘洋、卢有利、欧尧)、1名安全员(周刚)、1名地面挂钩人员(杨永福)、1名塔吊司机(陈政琼)、1名技术人员(龚国平,厦门威格斯公司员工),当天共完成顶升3节标准节;22日的顶升作业增加了2名安拆工(褚欧平、张亮),当天计划完成顶升4节标准节,在顶升第4节标准节时发生事故,塔身回转上部部件开始发生倾斜坠落,致使塔吊发生倾斜倒塌。
依据监控数据分析及相关人员问询可知,事发当天塔吊使用单位中J三局进行建筑材料吊装,上午约10时将塔吊移交给顶升班组,施工组织不合理。
(六)塔吊安全提示与标识方面。
与本事故同型号塔吊在国内曾于2013年10月3日在汉川国电厂和2014年在福建厦门发生过两起因顶升销无法完全插到位而继续顶升导致的生产安全事故。
据调查,塔吊制造单位未就上述两起事故的原因以及所暴露出的操作问题发函提醒并警示相关客户重点关注此类操作问题;未在危险性大、且易引发事故的关健销轴部位予以安全提示或标识;未组织相关设计人员针对销轴存在的无法正常插拔的根本原因、故障后果、处置措施等问题进行系统分析与评估。
(七)塔吊随机文件方面。
(1)塔吊制造单位提供的《安装与拆卸手册》中未见描述如何验证销轴插拔到位的方法;未见销轴无法顺利插拔的应对措施;未见描述是否需要锁定销轴及具体方法。
(2)塔吊《安装与拆卸手册》未提及销轴操纵杆系统的详细安装方法;操纵杆系统的零部件仅在《备件手册》中提及,但该资料全篇为英文,未按规定为一线操作者提供中文版手册。
(3)塔吊《安装与拆卸手册》在“顶升部件的识别”一章中对各个零部件的术语缺乏定义,在不同章节同一部位描述不一致,导致说明书难以理解。“顶升”一章中关于顶升的操作的描述不到位,其中的“拉出,推出”等描述与行业习惯理解的方向相反。
五、存在的主要问题
(一)相关企业。
1.北京正和公司。
作为B区项目事故塔吊产权、出租和安装顶升单位,其违反《安全生产法》第四条和第十九条的规定,未健全和落实安全生产责任制,施工现场安全生产管理保障不力;
违反《建设工程安全生产管理条例》第二十七条和《建筑起重机械安全监督管理规定》(建设部令第166号)第十二条第三项的规定,的规定,未经安全技术交底安排两名安拆人员进行顶升危险作业;
违反《安全生产法》第二十六条和《建设工程安全生产管理条例》第三十七条的规定,在使用新设备(事故塔吊)前未对施工作业人员进行专门的安全生产教育培训;
违反《建筑起重机械安全监督管理规定》(建设部令第166号)第十二条第一项、第二项的规定,编制的《塔吊附着、顶升专项施工方案》不符合事故塔吊产品说明书的设备性能要求,安全施工技术交底部分内容不符合事故塔吊实际情况,未按照塔吊产品说明书查验塔吊顶升辅助确认装置;
违反《建设工程安全生产管理条例》第十七条和《建筑起重机械安全监督管理规定》(建设部令第166号)第十三条第二款的规定,未安排本单位专业技术人员进行现场监督,未安排本单位技术负责人进行巡查;
违反《建筑起重机械安全监督管理规定》(建设部令第166号)第十三条第一款的规定,未及时排查制止在顶升安装作业时血液中均有乙醇成分的指挥人员、塔吊司机及部分安拆人员违规冒险作业;
违反《安全生产法》第三十八条第一款的规定,未能及时组织消除承重销轴无法插入正常工作位置的事故隐患.
2.中J四航局总承包分公司。
作为B区项目施工总承包实际施工单位,其违反《安全生产法》第四条、第十九条和《建设工程安全生产管理条例》第二十一条的规定,未健全和落实安全生产责任制和项目安全生产规章制度,放任备案项目经理长期不在岗,并任命不具备相应从业资格的人员担任项目负责人;
违反了《建设工程安全生产管理条例》第二十七条的规定,未落实安全施工技术交底工作;违反《建筑起重机械安全监督管理规定》(建设部令第166号)第二十一条第四项的规定,未认真审核《塔吊附着、顶升专项施工方案》,造成专项施工方案的内容不符合事故塔吊产品说明书的设备性能要求;
违反《建筑起重机械安全监督管理规定》(建设部令第166号)第二十一条第六项的规定,在塔吊顶升作业时没有组织专职安全生产管理人员进行现场监督检查。
3.珠江监理公司。
作为B区项目监理单位,其违反《安全生产法》第四条和第十九条的规定,未健全和落实安全生产责任制和项目安全生产规章制度,施工现场安全生产保障不力;
违反《广东省建设厅转发建设部关于印发〈房屋建筑工程施工旁站监理管理办法(试行)〉的通知》(粤建管字[2002]97号)第二条和第四条的规定,未能正确实施项目监理规划和细则,旁站监理员无监理员岗位证书上岗旁站,且事发时不在顶升作业现场旁站;
违反《建筑起重机械安全监督管理规定》(建设部令第166号)第二十二条第(三)、(四)项,未认真审核《塔吊附着、顶升专项施工方案》,造成专项施工方案的内容不符合事故塔吊产品说明书的设备性能要求,未能监督到安全施工技术交底部分内容不符合事故塔吊实际情况;
违反《建设工程安全生产管理条例》第十四条的规定,未能依照法律法规实施监理,未能排查两名未经过安全技术交底的安拆人员进行顶升作业;对本公司塔吊设备的专业监理人员缺乏、旁站监理人员配备不足的隐患未采取措施。
4.中J三局佛山分公司。
作为B区项目主体工程施工实施单位,其违反了《建设工程安全生产管理条例》第二十一条的规定,任命不具备相应职业资格的人员担任项目负责人。
违反《安全生产法》第三十八条的规定,对塔吊顶升作业现场协调管理不力,施工组织不合理,未能协调消除塔吊顶升作业事故隐患。
5.中J四航局。
作为B区项目建设及施工总承包单位。违反了《建筑法》第二十九条的规定,将该项目主体工程施工违法分包给中J三局。
违反《安全生产法》第四条的规定,未履行建设单位监管职责,对下属单位安全生产工作监管不力,安全生产主体责任、安全生产责任制不落实,组织安全生产大检查落实不力。
6.中J三局。
作为B区项目主体工程签约承建单位、具体施工上级单位。其与中J四航局总承包公司签订《中J集团南方总部基地B区土建工程施工合同》,未依法承接了事故项目主体工程的施工,且对实际施工的下属单位安全生产监督检查以及执行安全生产法律法规督促不力。
7.厦门威格斯公司。
作为B区项目顶升作业技术服务单位。其安排事故塔吊顶升作业的技术指导人员未能有效指导安拆工人熟悉事故塔吊的性能及工作原理,未能有效指导塔吊顶升作业,导致安拆工人在业务不熟悉的情况下,在塔吊上进行冒险顶升作业。
8.马尼托瓦克公司。
作为事故塔吊制造单位。其未就同型号事故塔吊曾发生的事故原因以及所暴露出的操作问题发函提醒警示相关客户重点关注此类操作问题;
未在危险性大、且易引发事故的关健销轴部位予以安全提示或标识;
未组织相关设计人员针对销轴存在的无法正常插拔的根本原因、故障后果、处置措施等问题进行系统分析与评估;塔吊随机文件缺失。
(二)相关监管单位。
经查明,监管单位海珠区住房和建设水务局(以下简称海珠区住建局)及其下级事业单位海珠区建设工程质量安全监督站(以下简称海珠区质监站),海珠区安全监管局、海珠区南洲街道办事处、海珠区政府、市住房城乡建设委等单位未按相关规定履行其职责,对事故的发生负有相应责任。
根据《建设工程安全生产管理条例》第四十条、第四十四条的相关规定,海珠区住建局应对海珠区的建设工程安全生产实施监督管理。同时,该局依法将施工现场的监督管理行政执法委托给其下属事业单位海珠区质监站具体实施。海珠区安全监管局负责全区安全生产和安全执法监督检查工作。南洲街道办事处负责辖区的安全生产日常监管和监督检查工作。
1.海珠区质监站。
监管工作流于形式,对违法分包、项目经理挂靠等问题视而不见,对塔吊重点环节安全监管不够细致,对上级批转的投诉举报不及时认真查处,未能督促事故单位消除安全隐患。上述存在的问题,海珠区质监站没有按规定书面报告海珠区住建局。另查明,海珠区质监站有关人员存在违规收受现场施工人员红包礼金等问题。
2.海珠区住建局。
未全面落实对建筑行业安全生产监督职责,对下属海珠区质监站的安全监督工作缺乏规范指导,监督检查不认真,该局局长、分管领导、建筑业监督管理科科长对安全生产监管不力。海珠区住建局全面落实从严治党主体责任不力,致使海珠区质监站发生多起收受红包礼金的违纪问题。
3.海珠区安全监管局。
对辖区内建设工程安全方面监督指导不认真,存在失察行为。
4.海珠区南洲街道办事处。
对辖区内建筑工地安全生产日常监管不认真,未能及时发现安全隐患问题。
5.海珠区政府。
未全面贯彻落实安全生产有关法律法规,未及时发现、协调、解决住建部门安全监督管理中存在的问题。
6.市住房城乡建设委。
对建筑工地的日常巡查工作流于形式,对重点建设项目和塔吊设备等关键环节缺乏健全完善的制度与监管,监督检查不认真,对信访件督办不力。
六、对有关责任人员和单位的处理意见
根据事故原因调查和事故责任认定,依据有关法律法规和党纪政纪规定,对事故有关责任人员和责任单位提出处理意见:
一是检察机关目前已批准对5名涉嫌犯罪的企业人员和2名政府监管人员实施逮捕。
二是根据调查认定的失职失责事实、性质,事故调查组在对10个涉责单位的26名责任人员调查材料慎重研究的基础上,依据《中华人民共和国公务员法》、《中国共产党纪律处分条例》、《行政机关公务员处分条例》、《安全生产领域违法违纪行为政纪处分暂行规定》、《广州市关于进一步加强党政机关工作人员问责工作的意见》等规定,拟对9名企业人员和17名政府监管人员给予党纪政纪、诫勉谈话、书面检查等处分。另对15名企业人员建议由企业根据内部管理规定处理。
三是事故调查组建议对3家事故企业和7名企业人员违法违规行为分别给予行政处罚。
四是事故调查组建议责成5家事故相关企业分别做出深刻检查等其他处理。
(一)司法机关拟追究刑事责任人员(7人)。
1.北京正和公司(2人)。
(1)张某龙,群众,北京正和公司广州分公司总经理,事故塔吊顶升项目负责人。2017年8月29日,因涉嫌重大责任事故罪,被海珠区人民检察院批准逮捕。
(2)周某刚,群众,北京正和公司广州分公司施工现场安全员。2017年8月29日,因涉嫌重大责任事故罪,被海珠区人民检察院批准逮捕。
2.中J四航局(2人)。
(1)詹某淦,中共党员,中J四航局总承包分公司在该项目的项目负责人。2017年8月29日,因涉嫌重大责任事故罪,被海珠区人民检察院批准逮捕。
(2)孙某雷,中共党员,中J四航局总承包分公司在该项目的分管安全生产项目副经理。2017年8月29日,因涉嫌重大责任事故罪,被海珠区人民检察院批准逮捕。且其违反了《生产安全事故报告和调查处理条例》第七条[36]的规定,在事故调查过程中涉嫌指使他人作伪证对抗组织调查。
3.珠江监理公司(1人)。
(1)王某前,群众,珠江监理公司在该项目的监理员。2017年8月29日,因涉嫌重大责任事故罪,被海珠区人民检察院批准逮捕。
4.海珠区质监站(2人)。
(1)杨某龙,中共党员,海珠区建设工程质量安全监督站副站长,分管质量监督工作。其不正确履行职责,监管工作流于形式,对工程项目违法分包、项目经理挂靠等问题视而不见,对塔吊设备等重点环节的安全监管工作不够细致,对上级批转的投诉举报件未认真查处,存在履职不力的行为,对事故的发生负监管方面的直接责任。此外,其因另案涉嫌受贿罪被海珠区检察院立案侦查。
(2)甄某华,中共党员,海珠区建设工程质量安全监督站安全监督科科长,负责B区项目的质量和安全监管工作。其未依法依规采取监管措施督促事故单位消除生产安全隐患,监管工作流于形式,对工程项目违法分包、项目经理挂靠等问题视而不见,对塔吊设备重点环节安全监管工作不够细致,对上级批转的投诉举报件未能认真查处,存在履职不力的行为,还违反廉洁纪律,收受影响公正执行公务的礼金,对事故的发生负监管方面的直接责任。此外,其因另案涉嫌受贿罪被海珠区检察院立案侦查。
对上述涉嫌犯罪人员中属于中共党员或行政监察对象的,按照干部权限,相关纪检监察机关或单位在具备处理条件时及时作出党纪政纪处理;对其中暂不具备处理条件且已被依法逮捕的党员,由有关党组织及时按规定中止其党员权利;不属于中共党员或行政监察对象的,待司法机关作出处理后由建设行政主管部门或相关单位依法追究其行政责任。
(二)给予党纪政纪处分、诫勉谈话、人员(26人)。
1.北京正和公司(1人)。
(1)史某泉,中共党员,北京正和公司法定代表人、党支部书记、董事长兼总经理。不认真贯彻落实国家有关安全生产政策和法律规定,对安全生产工作不重视;工作失职,违规决策不验收事故塔吊;疏于管理,未按规定督促检查指导内设机构履行职责,对内设机构存在的施工技术与安全管理混乱等问题失察。对事故的发生负有主要领导责任,建议给予其开除党籍处分。
2.中J四航局(4人)。
(1)罗某刚,中共党员,中J四航局总承包分公司总经理,顶升施工方案最终审批者。工作失职,未按规定履行职责,违规审批顶升施工方案,对该方案不符合塔吊产品说明书中事故塔吊的设备性能要求等准予审批;违规决策任命不具备相应从业资格的人员担任项目负责人,并放任备案项目经理长期不在岗;疏于管理,未按规定督促指导项目部履行安全生产管理职责,对项目施工现场管理混乱等问题失察。对事故的发生负有主要领导责任,建议给予其行政记大过、党内严重警告处分。
(2)齐某凯,中共党员,中J四航局总承包项目部党支部书记,事发当日项目值班领导。未认真贯彻落实国家有关安全生产政策和法律规定,未认真履行值班领导责任;工作失职,未按规定检查并整改项目现场安全管理混乱情况以及塔吊顶升隐患问题。对事故的发生负有直接责任,建议给予其行政记大过、党内严重警告处分。
(3)邓某标,中共党员,中J四航局总承包项目部副经理,分管机电工作。工作失职,未督促落实机电相关安全施工技术交底工作,未督促对危险性较大的分部分项工程专项施工方案实施情况进行现场监督。对事故的发生负有直接责任,建议给予其行政记大过、留党察看一年处分。
(4)赵某卫,群众,中J四航局总承包项目部总工程师。工作失职,违规审核顶升施工方案,对该方案不符合塔吊产品说明书中事故塔吊的设备性能要求等准予审核。对事故的发生负有直接责任,建议给予其行政撤职。
3.珠江监理公司(2人)。
(1)张某党,中共党员,珠江监理公司第二工程项目公司经理。疏于管理,未督促项目监理部落实安全生产责任制,对项目监理部配备不符合任职资格条件的监理人员的行为失察。对事故的发生负有主要领导责任,建议给予其行政记大过、党内严重警告处分。
(2)任某明,中共党员,珠江监理公司第二工程项目公司副经理。疏于管理,未督促项目监理部落实安全生产责任制,未按规定为项目监理部配备不符合任职资格条件的监理人员;未按规定督促检查本单位安全生产工作。对事故的发生负有主要领导责任,建议给予其行政记大过、党内严重警告处分。
4.中J三局(2人)。
(1)张某全,中共党员,中J三局佛山分公司党委书记、总经理。工作失职,任命不具备相应从业资格的人员担任项目主体工程负责人;疏于管理,对项目施工现场管理混乱、新进场作业人员的未落实安全培训教育、作业人员未落实安全施工技术交底工作、施工项目管理人员未对危险性较大的分部分项工程现场协调管理等存在问题失察。对事故的发生负有主要领导责任,建议给予其行政记过、党内警告处分。
(2)吴某龙,中共党员,中J三局佛山分公司党委副书记、执行总经理。疏于管理,对项目施工现场管理混乱,新进场作业人员的安全培训教育落实不认真,作业人员安全施工技术交底工作不落实,未对危险性较大的分部分项工程现场协调管理等问题失察。对事故的发生负有主要领导责任,建议给予其行政记大过、党内严重警告处分。
鉴于上述9人不属于行政监察对象,建议责成中J四航局、中J三局、广州珠江实业集团有限公司、珠江监理公司分别给予相应的处理;建议由北京市密云县经济开发区管委会给予相应的处理。
5.海珠区质监站(3人)。
1.陈某德,中共党员,海珠区质监站站长。其不正确履行职责,监管工作流于形式,对工程项目违法分包、项目经理挂靠等问题视而不见,对塔吊设备等重点环节的安全监管工作不够细致,对上级批转的投诉举报件未认真查处,存在履职不认真的行为,对事故的发生负监管方面的直接责任。建议给予其留党察看一年、行政撤职处分,由副处级降为副科级。
2.张某晖,中共党员,海珠区质监站总工程师,分管安全监督工作。其不正确履行职责,监管工作流于形式,对工程项目违法分包、项目经理挂靠等问题视而不见,对塔吊设备等重点环节的安全监管工作不够细致,对上级批转的投诉举报件未认真查处,对事故的发生负监管方面的直接责任。建议给予其留党察看一年、行政撤职处分,由正科级降为科员。
3.王某峰,中共党员,海珠区质监站监督员,负责监管B区项目所在片区。其不正确履行职责,未能采取监管措施督促事故单位消除生产安全隐患,监管工作流于形式,对工程项目违法分包、项目经理挂靠等问题未能认真查处,对塔吊设备重点环节安全监管工作不够细致,存在履职不力的行为,对事故的发生负监管方面的直接责任。建议给予其党内严重警告、行政撤职处分,由科员降为办事员。
6.海珠区住建局(4人)。
1.陈某锋,中共党员,海珠区住建局党委书记、局长。其履行全面从严治党主体责任不力,质监站存在多起收受红包礼金违纪行为;未全面落实建筑安全生产监督职责,对下属质监站质量安全监督工作缺乏规范指导,监督检查不认真,对此事故的发生负监管方面的主要领导责任。建议给予其党内警告处分。
2.梁某坚,中共党员,海珠区住建局副调研员,分管建管科、质监站等工作。其全面从严治党主体责任不力,质监站存在多起收受红包礼金违纪行为,对此负主要领导责任;未全面落实对建筑安全生产监督职责,对质监站相关工作缺乏规范指导,监督检查不认真,对上级批转的投诉举报件未认真查处,存在严重的失职行为,对事故的发生负监管方面的主要领导责任。建议给予其党内严重警告、行政记大过处分。
3.颜某进,中共党员,海珠区住建局建管科科长兼质监站副站长。其不正确履行职责,对辖区内建设工程监管不认真,对事故项目工地监管不力,日常检查工作流于形式,对存在问题未采取监管措施,存在失职行为,对事故的发生负监管方面的直接责任。建议给予其行政记大过处分。
4.秦某胜,中共党员,海珠区住建局建管科副主任科员,负责督促指导全区在建工程质量安全、文明施工以及处理相关投诉等工作。其不正确履行职责,对辖区内建设工程监管不认真,对事故项目工地监管不力,日常检查工作流于形式,对存在问题未采取监管措施,存在失职行为,对事故的发生负监管方面的直接责任。建议给予其行政记大过处分。
7.海珠区安全监管局(2人)。
1.马某明,中共党员,海珠区安全监管局执法分局三中队中队长,负责联系南洲街等6个街道的安全生产执法工作。其不正确履行监督检查职责,对联系片区工程建设方面的安全生产指导不认真,日常监管巡查不认真,存在失职行为,对事故的发生负监管方面的直接责任。建议给予其行政警告处分。
2.刘某栋,中共党员,海珠区安全监管局执法分局三中队科员,具体负责联系南洲街等6个街道的安全生产执法工作。其不正确履行监督检查职责,对联系片区工程建设方面的安全生产指导不认真,日常监管巡查不认真,存在失职行为,对事故的发生负监管方面的直接责任。建议给予其行政警告处分。
8.海珠区南洲街道办(4人)。
给予党纪政纪处分人员(3人):
1.区某东,民盟党员,海珠区南洲街道办事处主任。其作为街道安全生产责任第一人,对辖区内工程建设安全方面的监督检查不认真,对下属单位履行安全监管职责不认真失察,对事故的发生负监管方面的主要领导责任。建议给予其行政警告处分。
2.麦某锰,中共党员,海珠区南洲街道办事处副主任,分管安监中队、民政业务和居委会等工作。其不正确履行职责,对辖区内工程建设安全方面的监督检查不认真,对下属单位履行安全监管职责不认真失察,对事故的发生负监管方面的主要领导责任。建议给予其行政记过处分。
3.叶某宏,中共党员,海珠区南洲街道办事处综治办副主任兼安监中队负责人,负责南洲街道安全监管工作。其不正确履行职责,未依法依规采取监管措施督促事故单位消除生产安全隐患,监管工作流于形式,对检查中发现的问题未引起高度重视,存在失职行为,对事故的发生负监管方面的直接责任。建议其行政记过处分。
进行书面检查人员(1人):
1.温某平,中共党员,海珠区南洲街道党工委书记。其对辖区内工程建设安全方面监督检查不认真,对事故的发生负监管方面的重要领导责任。建议责令其作出书面检查。
9.海珠区政府(2人)。
1.李某洲,中共党员,海珠区委副书记、区长。其全面落实安全生产责任制及监管制度不认真,对事故的发生负监管方面的重要领导责任。建议责令其作出书面检查。
2.罗某华,中共党员,海珠区委常委、常务副区长,分管住房与城市建设、安全生产等工作。其对海珠区住建部门安全生产监督工作存在的问题失察失管,对事故的发生负监管方面的重要领导责任。建议责令其作出书面检查。
10.市住房城乡建设委(2人)。
进行诫勉谈话人员(1人):
1.张某成,中共党员,市住房城乡建设委建设工程质量安全处处长。其全面落实监管制度不认真,建筑安全重点环节监管不力,对事故工地相关举报线索未认真做好核查跟进,对事故的发生负监管方面的主要领导责任。建议给予其诫勉谈话。
进行书面检查人员(1人):
1.李某晖,中共党员,市住房城乡建设委副主任,分管建筑业管理处、建设工程质量安全处。其对建筑安全重点环节监管不力,对事故工地相关举报线索未认真做好核查跟进,对事故的发生负监管方面的重要领导责任。建议责令其作出书面检查。
(三)企业内部处理人员(15人)。
1.北京正和公司(8人)。
(1)陈某龙,群众,北京正和公司副总经理兼总工程师。工作失职,违规审批顶升施工方案,未发现该方案不符合塔吊产品说明书中事故塔吊的设备性能要求。对事故的发生负有主要领导责任,建议北京正和公司解除与其的劳动关系,并按照公司内部奖惩制度进行处理。
(2)龚某盛,群众,北京正和公司广州分公司副总经理兼后勤负责人、设备管理负责人。未按照塔吊产品使用说明文件查验塔吊顶升辅助确认装置。对事故的发生负有重要领导责任,建议北京正和公司按照公司内部奖惩制度进行处理。
(3)王某印,群众,北京正和公司广州分公司总工程师。未依法履行技术负责人的职责,工作严重失职,其编制的顶升施工方案不符合塔吊产品说明书中事故塔吊的设备性能要求,也未组织对顶升作业人员的技术培训和技术交底。违反《建筑起重机械安全监督管理规定》(建设部令第166号)第十三条第二款[37]的规定,未对事故塔吊的附着、顶升作业定期巡查。对事故的发生负有直接责任,建议北京正和公司解除与其的劳动关系,并按照公司内部奖惩制度进行处理。
(4)唐某军,群众,北京正和公司广州分公司安拆经理。未依法履行安拆经理的职责,工作严重失职,安排两名未经安全技术交底的顶升工人上塔作业;未对事故塔吊顶升操作进行安全教育,未在作业前对作业人员进行安全技术交底;对顶升技术指导人员指导不力、顶升作业人员冒险作业以及违反操作规程的行为失管。对事故的发生负有直接责任,建议北京正和公司解除与其的劳动关系,并按照公司内部奖惩制度进行处理。
(5)蔡某朋,群众,北京正和公司广州分公司区域运行工长。对塔吊司机管理不力。对事故的发生负有直接责任,建议北京正和公司解除与其的劳动关系,并按照公司内部奖惩制度进行处理。
(6)陈某波,群众,北京正和公司广州分公司施工现场作业班长。违反了《安全生产法》第五十四条、五十五条[38]的规定,未能认真落实安全技术交底,在不熟悉事故塔吊的性能及工作原理的情况下登塔进行冒险作业。对事故的发生负有直接责任,建议北京正和公司解除与其的劳动关系,并按照公司内部奖惩制度进行处理。
(7)王某光,群众,北京正和公司广州分公司施工现场安拆工。在不熟悉事故塔吊的性能及工作原理的情况下登塔进行顶升作业。对事故的发生负有直接责任,建议北京正和公司解除与其的劳动关系,并按照公司内部奖惩制度进行处理。
(8)余某伟,群众,北京正和公司广州分公司事故塔吊机长,未及时阻止塔吊吊装现场材料后,未经验收违规顶升作业。对事故的发生负有直接责任,建议北京正和公司解除与其的劳动关系,并按照公司内部奖惩制度进行处理。
2.中J四航局(2人)。
(1)石某文,群众,中J四航局总承包项目部的机电部负责人。工作失职,未监督落实机电相关安全施工技术交底工作,未指定专人对危险性较大的分部分项工程专项施工方案实施情况进行现场监督。对事故的发生负有直接责任,建议中J四航局按照公司内部奖惩制度进行处理。
(2)余某南,中共党员,中J四航局总承包分公司项目专职安全生产管理人员。未能认真履行安全生产管理职责,未落实现场作业人员安全教育培训,未在现场监督危险性较大的分部分项工程专项施工方案实施情况。对事故发生负有直接责任,建议中J四航局按照公司内部奖惩制度进行处理。
3.中J三局(5人)。
(1)陈某兵,群众,中J三局佛山分公司项目负责人,不具备项目负责人相应职业资格,作为项目负责人;未能认真履行安全生产管理职责,未认真落实公司安全生产责任制度,对施工现场管理混乱,新进场作业人员的安全培训教育落实不力,未落实作业人员安全施工技术交底工作,未对危险性较大的分部分项工程现场协调管理等问题失察。对事故的发生负有直接责任,建议中J三局解除与其的劳动关系,并按照公司内部奖惩制度进行处理。
(2)左某贵,群众,中J三局佛山分公司项目经理助理。未认真履行安全生产管理职责,未落实现场作业人员安全教育培训,未在现场协调管理危险性较大的分部分项工程安全专项施工方案实施情况。对事故的发生负有直接责任,建议中J三局按照公司内部奖惩制度进行处理。
(3)范某兵,中共党员,中J三局佛山分公司项目安全部负责人。未能认真履行安全生产管理职责,未按规定培训教育现场作业人员,未在现场监督危险性较大工程安全专项施工方案实施情况。对事故的发生负有直接责任,建议中J三局按照公司内部奖惩制度进行处理。
(4)范某冰,群众,中J三局佛山分公司项目机电管理员。违反了《建设工程安全生产管理条例》第二十七条[39]的规定,未能依法履行安全生产管理职责,机电相关安全施工技术交底工作落实不力,危险性较大的分部分项工程安全专项施工方案实施情况现场协调管理不力。对事故的发生负有直接责任,建议中J三局按照公司内部奖惩制度进行处理。
(5)王某海,群众,中J三局佛山分公司项目安全员。未认真履行安全生产管理职责,未落实现场作业人员安全教育培训,危险性较大的分部分项工程安全专项施工方案实施情况现场协调管理不力。对事故的发生负有直接责任,建议中J三局按照公司内部奖惩制度进行处理。
(四)建议给予行政处罚的个人(7人)。
1.北京正和公司(3人)。
(1)史某泉,北京正和公司法定代表人、董事长兼总经理。不认真贯彻落实国家有关安全生产政策和法律规定,对安全生产工作不重视;工作失职,违规决策不验收事故塔吊;疏于管理,未按规定督促检查指导内设机构履行职责,对内设机构存在的施工技术与安全管理混乱等问题失察。依据《安全生产法》第九十一条和第九十二条第二项的规定,建议由市安全监管局依法给予其行政处罚,其五年内不得担任任何生产经营单位的主要负责人。
(2)莫某义,北京正和公司常务副总经理。分管正和公司广州分公司,对分管单位安全生产工作检查不力,对于分管单位未根据实际使用的塔吊情况开展安全教育培训、安全技术交底、编制顶升施工方案的行为失察失管。依据《安全生产法》第九十三条的规定,建议由市住房城乡建设委依法给予其行政处罚。
(3)李某龙,北京正和公司广州分公司安全部经理。未有效履行安全生产职责,违反《安全生产法》第二十二条第二项的规定,未针对事故塔吊的性能及工作原理组织安拆作业人员进行针对性的安全生产教育和培训。依据《安全生产法》第九十三条[43]的规定,建议由市住房城乡建设委依法给予其行政处罚。
2.中J四航局(2人)。
(1)罗某刚,中J四航局总承包分公司总经理。未按规定履行职责,违规审批顶升施工方案,对该方案不符合塔吊产品说明书中事故塔吊的设备性能要求等准予审批;违规决策任命不具备相应从业资格的人员担任项目负责人,并放任备案项目经理长期不在岗;疏于管理,未按规定督促指导项目部履行安全生产管理职责,对项目施工现场管理混乱等问题失察。依据《安全生产法》第九十二条第(二)项的规定,建议由市安全监管局依法给予其行政处罚。
(2)黄某庆,中J四航局总承包备案项目经理。违反了《建筑工程安全生产管理条例》第二十一条的规定,长期未到岗履行项目经理职责,未能落实安全生产责任制度、安全生产规章制度。依据《建设工程安全生产管理条例》第五十八条的规定,建议由市住房城乡建设委依法给予其行政处罚。
3.珠江监理公司(2人)。
(1)陈某山,珠江监理公司董事长。疏于管理,违反了《安全生产法》第十八条第(三)、(五)项的规定,未能及时发现和解决公司塔吊设备的专业监理人员缺乏的重大问题;未能有针对性的组织制定并实施本单位安全生产培训教育计划。依据《安全生产法》第九十二条第(二)项的规定,建议由市安全监管局依法给予其行政处罚。
(2)李某建,珠江监理公司项目监理总监。未能落实安全生产管理职责,派无监理员岗位证书的监理员上岗旁站;对事发时监理员旁站脱岗等问题失察失管,且其本人事发时休息,未明确指定项目监理负责人。建议由市住房城乡建设委依法给予其行政处罚。
(五)建议给予行政处罚的单位(3家单位)。
1.北京正和公司。
其对事故发生负有主要责任。依据《安全生产法》第一百零九条第二项的规定,建议由市安全监管局依法给予其行政处罚。
2.中J四航局总承包分公司。
其对事故发生负有重要责任。依据《安全生产法》第一百零九条第二项的规定,建议由市安全监管局依法给予其行政处罚。
3.珠江监理公司。
其对事故发生负有重要责任。依据《安全生产法》第一百零九条第二项的规定,建议由市安全监管局依法给予其行政处罚。
(六)其他处理建议。
建议由市住房城乡建设委依法对中J三局佛山分公司进行处理。
建议责令中J四航局、中J三局向市住房城乡建设委作出深刻检查,认真总结和吸取事故教训,进一步加强和改进安全生产工作。
建议责令厦门威格斯公司、马尼托瓦克公司向广州市安委办作出深刻检查,认真总结和吸取事故教训,进一步加强和改进安全生产工作。
七、事故主要教训
(一)顶升施工企业安全责任意识淡薄,隐患排查整改落实不力。
北京正和公司组织编制的事故塔吊顶升施工方案,未根据塔吊随机资料和作业场地的实际情况编制,缺乏针对性,无法用于指导作业人员进行顶升作业;组织未经安全技术交底、饮酒后的顶升作业人员冒险高处作业;安全风险防控意识不强,在发现顶升销轴难以插到位等隐患存在情况下,未排查故障原因,而是违规锤击销轴端部,强制插拔销轴,在上述隐患未解决前,继续冒险顶升作业。
(二)涉事企业安全生产工作层层衰减、层层打折。
中J四航局将B区项目主体工程违法发包给中J三局,导致施工现场施工总负责主体责任缺失,安全生产管理混乱,安全生产责任不落实。施工单位负责人、管理人员、施工人员、现场指挥人员均不熟悉此种型号塔吊的性能、说明书、顶升施工方案,违规审核审批方案;任命不具备相应从业资格的人员担任项目负责人,放任备案项目经理长期不在岗;未督促落实安全检查、教育培训工作。从项目建设单位、施工总承包单位,到现场施工单位、监理单位、塔吊安装单位,安全生产工作力度层层衰减、执行力层层打折。建设单位部署安全生产动作迟缓、工作措施不具体;总承包单位责任不明确,以包代管、以租代管,安全生产工作流于形式。施工现场各单位安全检查不认真,安全生产专项检查缺少具体工作内容和针对性措施,对发现的隐患没有形成有效闭环管理。
(三)监理单位履行职责不力,安全监理滥竽充数、形同虚设。
珠江监理公司未认真执行监理细则方案,现场监理人员无证上岗,且自身安全技术知识与塔吊顶升工作需要不匹配,对施工单位提交的专项施工方案、安全技术措施心中无底,隐患排查治理、风险辨识管控不落实,对施工现场存在的安全事故隐患未能及时发现和消除。
执行法律法规意识淡薄,对自己应负的安全责任认识不足,责任心不强;现场监理人员到位情况较差,事发不在现场旁站。事发当日中午,塔吊顶升过程临时新增加未经安全技术交底的顶升安拆作业人员登塔作业,现场监理对此不闻不问。珠江监理公司监理的工地连续发生事故。2017年8月13日,仅在事故发生后的第21天,其监理的中山市东区长江路改造工程工地又发生一起汽车起重机整体倾覆事故,造成4人死亡、2人受伤。
(四)行业主管部门及属地政府安全生产监管不力。
“7·22”事故发生在我市“3·25”较大事故后的4个月内,造成人民生命财产损失严重,社会影响恶劣。海珠区党委、政府存在着“重发展、轻安全”的问题,落实安全生产责任制和监管制度不足,致使重大安全隐患问题未能被及时发现、及时整改,未及时发现、协调、解决城乡住房建设部门安全生产监督工作存在的问题。海珠区住房城乡建设部门对安全生产工作重视不足,对违法分包、项目经理挂靠等问题视而不见,对塔吊重点环节安全监管不够细致,对上级批转的投诉举报不及时认真查处,未能督促事故单位消除安全隐患;全面落实从严治党主体责任不力,致使海珠区质监站发生多起收受礼金影响公正执行公务的违纪问题。
八、事故防范措施建议
为全面贯彻落实《中共中央 国务院关于推进安全生产领域改革发展的意见》,坚持安全发展,坚守发展决不能以牺牲安全为代价这条不可逾越的红线,深刻吸取事故教训,着力强化企业安全生产主体责任,着力堵塞监督管理漏洞,着力解决不遵守法律法规的问题,提出以下建议:
(一)增强安全生产红线意识,进一步强化建筑施工安全工作。
各区党委政府、各有关单位和各建筑业企业要进一步牢固树立新发展理念,坚持安全发展,坚守发展绝不能以牺牲安全为代价这条不可逾越的红线,充分认识到建筑行业的高风险性,杜绝麻痹意识和侥幸心理,始终将安全生产置于一切工作的首位。各有关部门要督促企业建立健全安全生产责任制,完善企业和施工现场作业安全管理规章制度,严格按照有关法律法规和标准要求,按照施工实际,拟定安全专项方案,配足技术管理力量。要督促企业在施工前加强安全技术培训教育,加强施工全过程管理和监督检查,督促各施工承包单位、劳务队伍严格按照法律法规标准和施工方案施工。
(二)健全落实安全生产责任制,确保监管主体责任到位
各级党委、政府要建立完善安全生产责任体系,严格落实“党政同责、一岗双责、齐抓共管、失职追责”的安全生产责任制。党委、政府要采取有效措施,及时发现、协调、解决各负有安全生产监管职责的部门在安全生产工作中存在的重大问题,认真排查、督办重大安全隐患,切实维护人民群众生命财产安全。各级专业建设行业主管部门要切实落实行业监管责任,推动监管人员压往、压实、压强一线,依照法定职责加强现场监管。特别是要高度重视危险性较大工程施工全过程的安全监管工作,细化措施要求,加强检查督导,协调解决重大隐患问题。各负有安全生产监管职责的部门,要强化对本行业本领域企业的监督监察工作,着力采取预防性执法手段,督促本行业领域企业消除生产安全事故隐患。
(三)严格落实行业监管责任,督促建筑施工相关企业落实主体责任
市住房城乡建设委牵头,市交委、市城管委、市水务局、市林业和园林局、广州供电局等专业建设行业主管部门参与,督促全市建设行业相关单位加强危险性较大工程的安全教育、安全培训、安全管理,特别是要求工程建设、勘察设计、总承包、施工、监理等参建单位严格遵守法律法规要求,严格履行项目开工、质量安全监督、工程备案等手续。各级专业建设行业主管部门要加强现场监督检查,对发现的问题和隐患,责令企业及时整改,重大隐患排除前或在排除过程中无法保证安全的,一律责令停工,并通过资信管理手段对施工企业进行限制;针对信访投诉案件,要深入调查,及时处理。
(四)组织事故案例剖析,加强建筑施工人员安全教育
市住房城乡建设委、市交委、市城管委、市水务局、市林业和园林局、广州供电局等专业建设行业主管部门组织本行业建设项目,开展全市建筑施工领域的安全生产警示教育,召开本起事故案例分析会,观看本起事故警示片。市住房城乡建设委牵头组织编制建筑施工作业的安全培训教材和事故案例汇编,组织全市所有在建工地进一步加强对建筑施工作业人员的安全教育,重点是学习、掌握建筑施工作业的危险因素、防范措施以及事故应急救援措施。同时,各级专业建设行业主管部门要充分利用广播、电视、报纸、网络等媒体,大力宣传违法建设、违法发包、违法施工、违章指挥、强令冒险作业的危害,引导建筑领域从业人员、特别是广大外来务工人员,不要参与违法建设工程,避免造成人身伤害和财产损失,进一步提高建筑施工作业人员的安全意识和防范技能。
(五)加大行政监管执法力度,严厉打击非法违法行为
市住房城乡建设委、市交委、市城管委、市水务局、市林业和园林局、广州供电局等专业建设行业主管部门要进一步加强建设领域的“打非治违”工作,重点集中打击和整治以下行为:建设单位规避招标,将工程发包给不具备相应资质、无安全生产许可证的施工单位的行为;建设单位不办理施工许可、质量安全监督等手续的行为;施工单位弄虚作假,无相关资质或超越资质范围承揽工程、转包工程、违法分包工程的行为;施工单位不按强制性标准施工、偷工减料、以次充好的行为;施工单位主要负责人、项目负责人、专职安全生产管理人员无安全生产考核合格证书,特种作业人员无操作资格证书,从事施工活动的行为;施工单位不认真执行生产安全事故报告、主要负责人及项目负责人施工现场带班、生产安全隐患排查治理等制度规定的行为;施工单位不执行《危险性较大的分部分项工程安全管理办法》的规定,不按照建筑施工安全技术标准规范的要求,对深基坑、高支模、脚手架、建筑起重机械等重点工程部位进行安全管理的行为;施工单位不制定有针对性和可操作性的作业规程、施工现场管理混乱,违章操作、违章指挥和违反劳动纪律的行为等。
(六)明确施工各方责任,切实提升总承包工程安全管理水平
各建筑企业要研究制定与工程总承包等发包模式相匹配的工程建设管理和安全管理制度。重点按照工程总承包企业对总承包项目的安全生产负总责,分包企业对工程总承包企业服从管理的原则和模式,明确总承包、分包施工各方的安全责任。强化建设单位对建设工程过程管理责任,严禁以包代管、以租代管、违法发包,高度重视总承包企业安全生产管理的重要性,保障项目施工过程安全生产投入,完善规章规程,加强全员安全教育培训,扎实做好各项安全生产基础工作。各项目参建单位,在勘察设计、采购验收、安装施工、建章立制、人才配备等各环节强化安全生产工作,确保分包领域本质安全。
(七)开展防范建筑起重机械事故专项整治,切实做到闭环管理
各建筑业企业要对建筑起重机械的安装、顶升、拆卸等作业进行专项整治,重点是:安装单位是否按照安全技术标准及建筑起重机械性能要求,编制建筑起重机械安装、顶升、拆卸工程专项施工方案,并由本单位技术负责人签字;是否按照安全技术标准及安装使用说明书等检查建筑起重机械及现场施工条件;是否组织安全施工技术交底并签字确认;是否制定建筑起重机械安装、拆卸工程生产安全事故应急救援预案;是否将建筑起重机械安装、拆卸工程专项施工方案,安装、拆卸人员名单,安装、拆卸时间等材料报施工总承包单位和监理单位审核后,告知工程所在地县级以上地方人民政府建设主管部门。监理单位是否审核建筑起重机械特种设备制造许可证、产品合格证、制造监督检验证明、备案证明等文件;是否审核建筑起重机械安装单位、使用单位的资质证书、安全生产许可证和特种作业人员的特种作业操作资格证书;是否审核建筑起重机械安装、拆卸工程专项施工方案;是否审核建筑起重机械安装、拆卸工程专项施工方案;是否监督安装单位执行建筑起重机械安装、拆卸工程专项施工方案情况;是否监督检查建筑起重机械的使用情况。严把方案编审关、严把方案交底关、严把方案实施关、严把工序验收关。
(八)全面推行安全风险管控制度,强化施工现场隐患排查治理。
各建筑业企业要制定科学的安全风险辨识程序和方法,结合工程特点和施工工艺、设备,全方位、全过程辨识施工工艺、设备施工、现场环境、人员行为和管理体系等方面存在的安全风险,科学界定确定安全风险类别。要根据风险评估的结果,从组织、制度、技术、应急等方面,对安全风险分级、分层、分类、分专业进行有效管控,逐一落实企业、项目部、作业队伍和岗位的管控责任,尤其要强化对存有重大危险源的施工环节和部位的重点管控,在施工期间要专人现场带班管理。要健全完善施工现场隐患排查治理制度,明确和细化隐患排查的事项、内容和频次,并将责任逐一分解落实,特别是对起重机械、模板脚手架、深基坑等环节和部位应重点定期排查。施工企业应及时将重大隐患排查治理的有关情况向建设单位报告,建设单位应积极协调施工、监理等单位,并在资金、人员等方面积极配合做好重大隐患排查治理工作。
文章来源: 永年加固公司 本文链接: http://lubanwang.com/a_20200515140520.html 任何关于加固工程的问题和建议,敬请咨询:0591-87868646
上一篇:招聘信息























