福州软件园A区29#楼架空层被擅自围堵,原有停车用途被改变
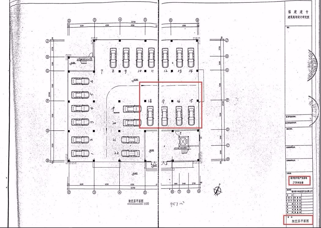
发布日期:2019-11-15 13:19:22 浏览量:1377 根据福州市软件园海峡园的规划及建字第榕规(2004)建字第10063号《建筑工程规划许可证》,海峡园内所有研发楼的底层均规划作为架空停车使用),29#研发楼也不例外。
在2005年《民用建筑设计通则》与2019年《民用建筑设计统一标准》的术语解释中,对“架空层”皆规范解释为“用结构支持且无外围护墙体的开敞空间”。因此,架空层不应当存在围护墙体,而应为敞开式空间。
根据当年福建建专建筑规划设计研究院出具的福州市软件园产业基地29号研发楼架空层平面图的设计图纸(如下),此区域应为敞开式停车区域,但是现在被祥丰物业及其关联公司“福建益网信息技术有限公司”对29#研发楼架空层任意围挡施工,该行为明显违反上述规划许可。
其次,开发商与福建益网信息技术有限公司擅自改变了消防、规划核定的29#楼架空层停车之用途。现今,整个海峡园,唯有29#研发楼的底层被任意围堵分割后施以他用,造成停车紧张、电动车停放无序、通道堵塞等状况,与整个海峡园原本秩序井然的局面格格不入,不但妨碍了软件园的办公环境,更是留下了消防隐患。
鉴于上述行为严重违反了《城乡规划法》、《福建省建筑装修管理暂行办法》,福州软件园物业管理中心曾对此提出了整改要求,但无论是“福州祥丰科技园开发有限公司”还是“福建益网信息技术有限公司”,均置之不理,未按期自行拆除,而软件园物业管理中心却无更进一步的措施。同时,执法局与规划局亦未能快速执行《福州市城区“两违”查处规程》与《福州市“两违”认定标准及分类处置意见》,缺乏及时、有效制止手段,导致时至今日29#楼的底层违建仍未能彻底拆除。
我司从6月底对该违建发起数次投诉,直至10月中旬城管局五凤中队才仅仅拆除1米有余的一小块墙面,既然违建事实、证据确凿且有相关规程、办法支撑,那就请相关执法部门能认真对待群众及企业的投诉,依法依规明确拆违时间,对已建成的违建彻底强制拆除!
文章来源: 永年加固公司 本文链接: http://lubanwang.com/a_20191115133129.html 任何关于加固工程的问题和建议,敬请咨询:0591-87868646






