楼板开洞后该做如何加固处理
发布日期:2017-03-15 14:47:50 浏览量:2554在实际的工程之中,现浇楼板开洞后,需要运用粘贴碳布、粘钢等加固方法,当面对这些问题时,我们又该注意什么呢?
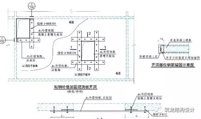
1、现浇楼板开洞加固方式
一般是根据开洞大小进行确定。
当开洞大小小于300mmX300mm时,切断钢筋数量≤5%时,可不作处理;
当开洞大小小于1000mmX1000mm时,切断钢筋数量≤20%时,当板受影响小,可按照构造进行加固,采用粘钢和粘接碳布方式来进行加固处理;
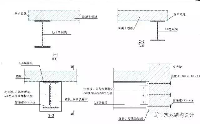
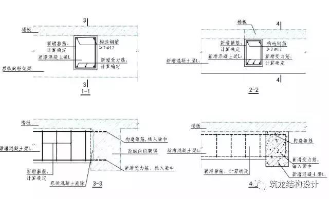
当超出以上情况时,则需要通过设计计算采用合适的型钢边梁或现浇混凝土边梁进行加固方法。

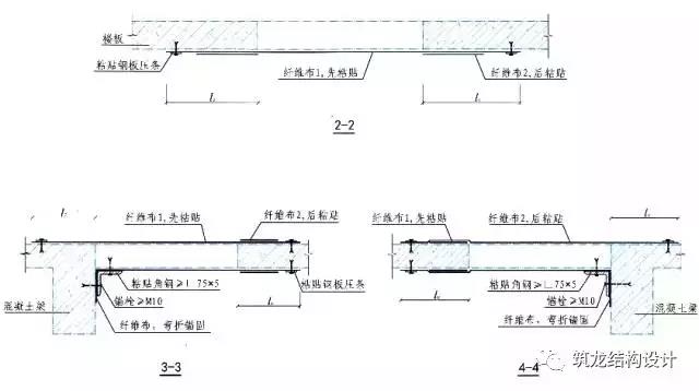
2、粘钢加固
现浇连续板开洞,当开洞位置位于板的负弯矩区时,采用粘钢作为补偿加固时,应双面加固。对于粘贴钢板加固法,受力较大方向宜粘贴在最外层(其含义就是最后粘贴),受力较小方向钢板钢板粘贴于里层(最先进行粘贴)。
此时,先粘钢板应于混凝土贴面处开槽,开槽厚度≥钢板厚度+3mm,以保证先粘钢板面与楼板地面齐平。亦可双向齐平粘贴,但需将受力较小方向钢板切成三段,现场焊接,局部后灌胶粘剂。

相关要求
1)钢板选用规格宜采用宽为100mm~200mm,厚度为3mm~5mm。
2)开洞较小,构造加固才可采用此加固方法。
3)补偿钢板面积不得小于截断钢筋的等效截面面积的1.2倍。

3、粘接碳布加固
现浇连续板开洞,当开洞位置位于板的负弯矩区时,采用粘接碳布加固时,也应进行双面加固,纵横纤维布粘贴先后顺序可不受限制。

相关要求
1)碳布选用规格采用宽为200mm~300mm,质量为200g~300g。
2)开洞较小,构造加固才可采用此加固方法。
3)补偿碳布最大拉力值不得小于截断钢筋的等效拉力值的1.2倍。
4)碳布与钢板接触时应涂胶粘剂一层,不可直接接触。

4、两者共性
无论是承担负弯矩的板面钢板还是碳布,都会因墙体阻挡,无法贯通,此时可采用螺杆及短角钢穿墙拉结锚固传递拉力。对于框架结构现浇楼板角区开洞,承担负弯矩的板面钢板或碳布,都应弯折锚固与边梁外侧,并满足锚固长度要求。

在对现浇楼板开洞改造时,开洞楼板的刚度与强度较不开洞时会有不同程度的削弱,一般来说,刚度的削弱更为明显,在洞口短边或转角处会出现较大的应力集中,板面筋的减少,导致承载力降低,因此应对开洞后的楼板进行内力分析和承载力验算之后,再结合楼板性质(梁式楼盖、无梁楼盖、简支板、连续板、单向板、双向板)、开涧部位(边缘、中部)、开洞大小及形状等差异,分别采用合适的加固处理方法。
文章来源: 永年加固公司 本文链接: http://lubanwang.com/a_20170315225512.html 任何关于加固工程的问题和建议,敬请咨询:0591-87868646






